2023 ASLA Professional Awards
Honor Award, General Design

The University of Texas at El Paso Transformation

El Paso, Texas, United States
Client: The University of Texas at El Pasp

The authenticity and sense of place created are off the chart. What a bold and generous gift to the campus community. The variety of spaces created shaping the edges of the main green space enhances the campus in meaningful ways and beautifully connect the landscape to the surrounding buildings.

Awards Jury

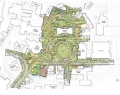
In celebration of its centennial, the University of Texas El Paso commissioned a Campus Transformation Project to reimagine the car-oriented campus dominated by asphalt, sloped lawns, and clipped hedges into a universally accessible, pedestrian-oriented campus linked to its desert ecosystem. This project transformed the 11.5-acre campus into a place that fosters biodiversity and celebrates the beauty of the desert. The project introduces a network of walkways, natively planted arroyos, and green spaces to promote connectivity, inspire outdoor exploration, and provide ecosystem services. The project earned the world’s first Sustainable SITES v2 certification, establishing a new standard of design for civic landscapes in desert environments.
The University of Texas at El Paso (UTEP) is an important node of public higher education. Yet its campus had long been characterized by an underperforming and regionally dissonant assemblage of asphalt, lawn, and clipped hedges, smothering expanses of rugged desert terrain and ephemeral drainage ways, known as arroyos, compromising the sensitive desert ecology and creating hazardous runoff conditions during the rainy season. To create a more sustainable, resilient, and pedestrian-friendly campus environment, UTEP commissioned our landscape architecture firm to lead an 18-acre Core Campus Master Plan and implement a 11.5-acre Campus Transformation Project. This project re-established natural systems, reconnected the campus to the region’s heritage, and created a pedestrian-oriented environment that immerses students in the beauty of the Chihuahuan Desert. The campus topography includes 60 feet of grade change, creating a challenge to its pedestrian accessibility and stormwater mitigation. The introduction of two open spaces, Centennial Plaza and Centennial Green, answered both challenges. Encircled by a generous paseo and an arc of native mesquite trees that provide shade, the Plaza welcomes visitors to the heart of the campus, serving as the foreground to the Green. By cutting it into the hillside, this new feature creates a cascading amphitheater with a drought-tolerant lawn. The paseo links two new tree-shaded pedestrian promenades, stairs, ramps, and other walkways that extend the spirit of these core spaces to the greater campus. The design connects open spaces with native vegetation, water, and wildlife. The two new arroyos connect visually and hydrologically to the mountain foothills and watershed beyond, channeling, slowing, and filtering stormwater, which had once run across impermeable asphalt. This mitigates stormwater runoff, increases valuable recharge to the aquifer, reduces erosion, prevents dangerous flood conditions on site, and improves the health of the watershed within and beyond the campus by reducing pollutants that reach the Rio Grande. To support an outdoor environment for the university community, shade was imperative. Adding over 650 xeric shade trees mitigates heat, while irrigation-fed water features provide further cooling. Permeable pavers and stabilized decomposed granite reduce impervious paving and heat island effect, while new outdoor spaces provide power and Wi-Fi access so students can stay connected outdoors. The design integrates local and salvaged materials, reducing waste and engaging the site’s historical context. Demolished construction materials, excavated in re-grading were repurposed whenever possible, and concrete salvaged from old campus sidewalks was used to form the check dams and to create paving with permeable joints in the Plaza. The transformed UTEP campus demonstrates a new standard for open space design in El Paso and other arid communities by balancing human comfort with stewardship for the delicate desert ecosystem. This project demonstrates the ability for collaborative teams to transform over-paved, car-oriented sites into living, breathing urban ecologies that support a high quality of life and connection with native environments, but also the ability of design to foster a sense of pride within a community. In recognition of the project’s success, it became the first project in the world to earn Sustainable SITES v2 certification.
  • Lake | Flato Architects - shade structures
  • Quantum Civil Engineers - Civil Engineer
  • Architectural Engineers Collaborative - Structural engineer
  • EEA Consulting Engineers - MEP
  • Greenscape Pump - water feature mechanical engineers
  • Aqua Irrigation - Irrigation
  • Rider Levett Bucknall - Cost estimation
  • Altura Solutions - Accessibility Consultant
  • Biohabitats - watershed study
  • Regenerative Environmental Design - SITES Documentation
  • Yarnell Associates - Lighting
  • Jordan Foster Construction - General Contractor

Products

  • Furniture
  • Fences/Gates/Walls
  • Hardscape
  • Lighting
  • Acacia famesiana 'Sierra Sweet'
  • Chilopsis linearis 'Bubba'
  • Populus deltoides wislizenii
  • Prosopis glandulosa Maverick
  • Prosopis glandulosa
  • Prosopis pubescens
  • Quercus buckleyi
  • Quercus fusiformis
  • Quercus grisea
  • Quercus muehlenbergii
  • Quercus polymorpha
  • Cercis canadensis var mexicana
  • Diospyros texana
  • Eysenhardtia texana
  • Leucaena retusa
  • Sophora secundiflora
  • Yucca rostrata
  • Anisacanthus quadrifidus v wrightii
  • Buddleja marrubiifolia
  • Chamaerops humilis cerifera
  • Chrysactinia mexicana
  • Ericameria laricifolia
  • Fallugia paradoxa
  • Viguiera stenobla
  • Hesperaloe funifera
  • Hesperaloe parviflora 'Perpa'
  • Nolina microcarpa
  • Yucca pallida
  • Dyssodia pentachaeta
  • Melampodium leucanthum
  • Bouteloua curtipendula
  • Muhlenbergia capillaris 'Regal Mist'
  • Muhlenbergia emersleyi 'El Toro'
  • Nasella tenuissima
  • Alkali Sacaton
Advertisement

Related Awards

Award of Excellence, General Design

A Floating Forest: Fish Tail Park in Nanchang City

In Nanchang, within the Yangtze River floodplain, we revitalized a heavily degraded 126-acre landscape into a floating forest that manages stormwater, restores habitats, and provides diverse recreational spaces—all within a limited budget and a short timeline. This innovative urban nature model strengthens the district’s identity and spurs surrounding development. Fish Tail Park offers a scalable solution for flood-prone regions, seamlessly integrating flood resilience, ecological restoration