Advertisement

Downtown Marlborough Green Infrastructure Streetscape

Kansas City, Missouri | Phronesis

Community Development

Downtown Marlborough Green Infrastructure Streetscape

Kansas City, Missouri | Phronesis

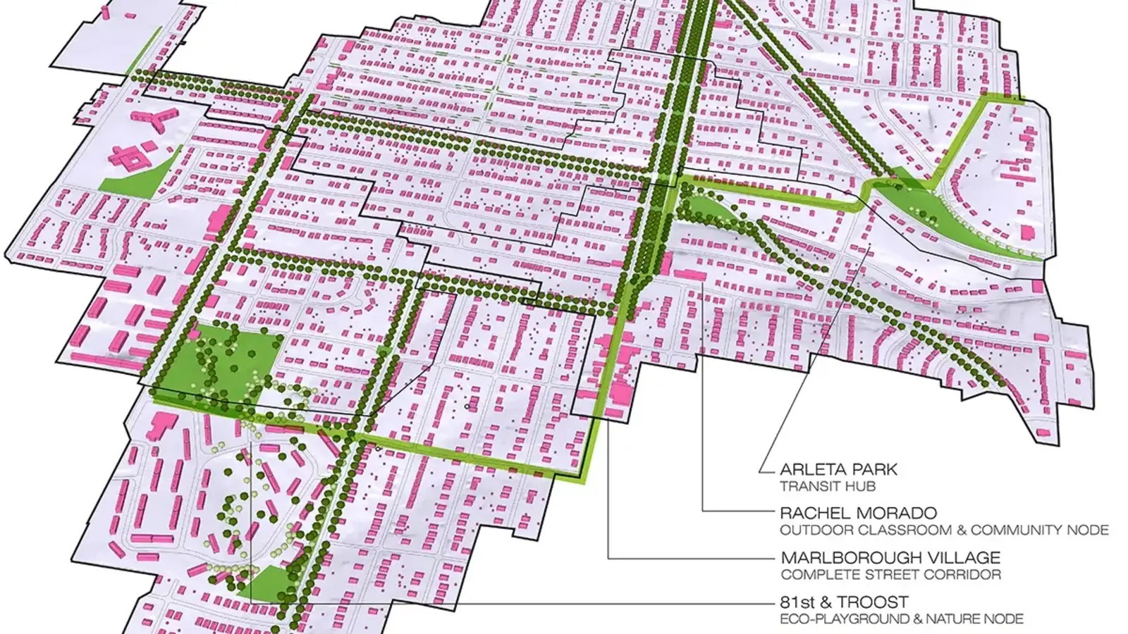
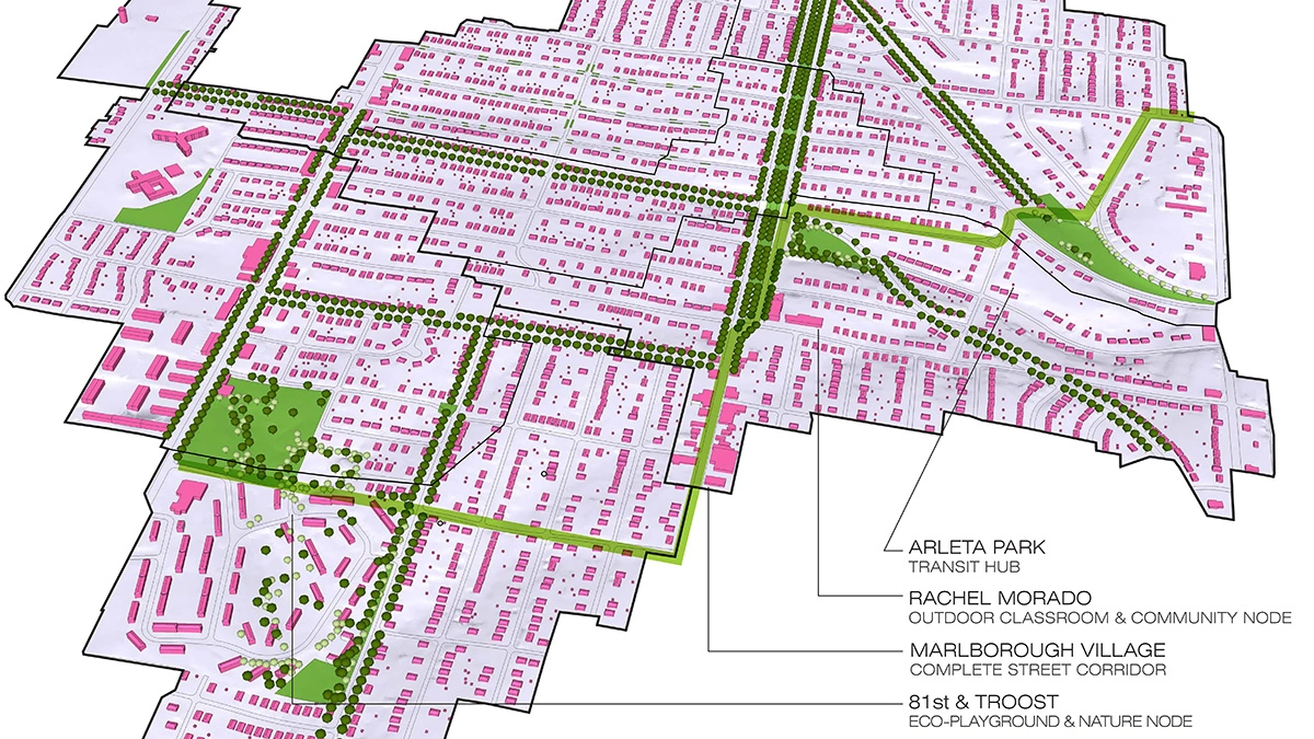
The Environmental Protection Agency (EPA) required Kansas City, Missouri, to reduce combined sewer overflows entering the Blue and Missouri Rivers. The consent decree negotiated with the city enabled the use of green infrastructure to capture stormwater at the source, thereby reducing overflows that pour pollution into the rivers. In the Marlborough neighborhood, Phronesis designed the first green infrastructure projects under the agreement, building a healthy, green transportation corridor along the central commercial district. To encourage more walking and biking, Phronesis proposed new destinations—safe, resilient, and environmentally just parks and ecoplaygrounds. The streetscape project for Kansas City Public Works became a broader community development project that supported transportation-oriented development and community and environmental health.

Background:

The Marlborough community plan developed by Phronesis is part of a broader $40 million green infrastructure investment into the 744-acre Middle Blue River watershed by Kansas City that is focused on community revitalization, health, and sustainability. The investment resulted in a 78 percent reduction in combined sewer overflows into the Blue River.

Phronesis’s plan not only included a green street corridor, but also new green destinations: Arleta Park, a transit hub; Rachel Morado outdoor classroom and community center; and an ecoplayground and nature park.

In Marlborough, Phronesis facilitated a community outreach and engagement process that gathered wants, needs, and desires, with the goal of identifying achievable solutions. Community engagement included monthly stakeholder and public meetings and door-to-door interaction with businesses. The community benefited from a strong network of active community members organized in the Marlborough Community Coalition and a community action plan called Marlborough Catalyst.

Phronesis created a resilient community plan by bringing both a watershed and community development approach. According to Phronesis, planning with green infrastructure at the heart of the project “not only met the technical requirements of Kansas City’s overflow control program requirements, but also became a catalyst for economic development and community enhancement.” The plan outlined how green infrastructure could lead to new jobs and investment and create opportunities for additional financing through private and public partnerships.

Their approach “expanded the vision of green infrastructure as community building in Kansas City to a national audience and was successfully replicated in other watersheds of Kansas City.”


Demonstrates these solutions:

  • Promote transit-oriented development.
  • Plan and design using smart growth approaches to decrease energy use and promote resilience.
  • Proactively address equitable access to transportation options, affordable housing, jobs, and recreation and open space.
  • Incorporate green infrastructure into all new and existing urban and suburban development.
  • Use complete streets principles to provide safe, connected, and convenient pedestrian and bicycle routes, including routes that connect to rail and bus routes.
  • Incorporate green infrastructure in all transportation projects.