AECOM Roof Garden: From Corporate Garden to Nature Space Advocacy

by Lee Parks, International ASLA, and LIAO Jingjing

Ornamental grasses in autumn on the AECOM Green Roof in 2016 / image: courtesy of Lee Parks, AECOM

In June 2016, AECOM moved its Shanghai office to the Knowledge Innovation Community (KIC) in Yangpu District. AECOM leased floors nine to twelve of building 7 which included space for an outdoor roof terrace on part of the twelfth floor. The terrace was initially designed to meet corporate requirements for leadership visits, hosting events, client receptions, and employee social interaction, resulting in a contemporary design with a hospitality-style space.

A limited selection of structural planting was selected to form and enclose space, to screen utilities, and create a low maintenance, formal garden. For seasonal highlights, groups of ornamental grasses (Muhlenbergia capillaris) were used in timber seating platforms and eight over-sized pots with flowering trees were placed on a central lawn (Lagerstroemia indica).

However, between 2016 and 2018 very few corporate events took place outdoors, and the terrace primarily provided the green backdrop to indoor events, functioning more for visual amenity rather than encouraging social interaction, or enjoyment of nature. In 2018, landscape practice leader Lee Parks, International ASLA, instigated a roof garden initiative to diversify the roof garden.

Original Site Conditions

Prior to leasing the office space, the property developer provided a simple extensive green roof system, flexible for tenants to adapt to their needs. Extensive green roof systems characteristically consist of a shallow layer of growing media—typically, less than 80mm deep—planted with a variety of drought tolerant hardy plants, such as grasses and sedums. The system is lightweight and helps to mitigate urban heat island effect and minimize stormwater run-off by absorbing rainwater in the vegetated areas. Non-vegetated areas used permeable gravel paths to enable access for maintenance and further enhance stormwater management.

Original roof site conditions with simple extensive green roof with lightweight soils, permeable gravel paths, solar lighting. Stairs, vents, pipes and parapet walls were exposed to view.  / image: courtesy of Lee Parks, AECOM

The Roof Terrace Design

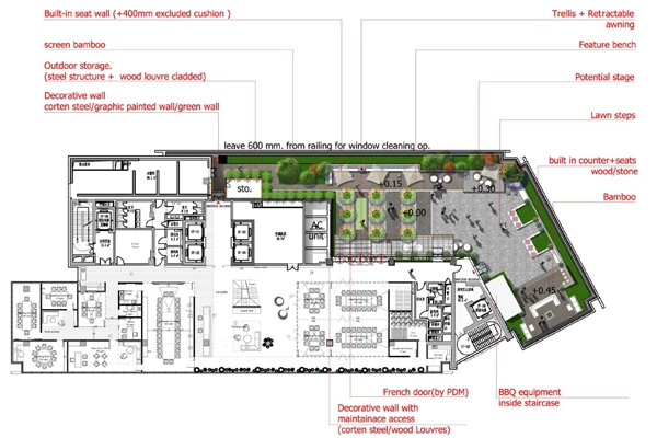
The initial design intent for the roof terrace was positioned for corporate activities adopting a vibrant and hospitality-style terrace. Designed by AECOM’s in-house hospitality landscape specialists, the original plans included a bar, barbeque area, fire pits, VIP seats, a stage, and space to locate a screen for films. Over-sized pots, candles, cushions, and gas heaters provided comfort and ambience for evening entertainment and corporate events.

2015 landscape proposals envisaged a roof terrace for corporate events and activities. Click here to view at a larger scale. / image: courtesy of Lee Parks, AECOM
A collage from the proposals envisioned French doors opening out to the roof terrace for client receptions and corporate events with bar and barbeque facilities. Trees in over-sized pots provide ample shade and lush green canopies. / image: courtesy of Lee Parks, AECOM
The design envisioned enclosing the staircase and providing a barbeque area, a stone stage, and seating in stone with ornamental grasses and soft cushions. Umbrellas and seating surround the outer edges of the space. Utilities were proposed to be hidden with timber screening. / image: courtesy of Lee Parks, AECOM
Raised seating was proposed to partially screen the parapet, leaving a 600mm gap from parapet to back of seat wall for window cleaning operations and building maintenance. Chinese grey-brick paving and wood decking add warmth. The Chinese grey-brick adds a cultural reference to Shanghai’s local vernacular drawn from the old ‘Shikumen alleys’ seen in the historic areas of the city. / image: courtesy of Lee Parks, AECOM

From Vision to Reality

The aspiration for the roof terrace responded to the brief and targeted the optimum space required for events. Corporate activities rarely take place and for a major part of the calendar year, employees and executives spend their lunch hours eating indoors or nearby at local restaurants. Extravagant features of the landscape proposals were omitted due to practical or budgetary constraints, such as the enclosed barbeque, French doors, and some of the natural stone elements for the stage and seating. The resulting roof terrace achieved the main spatial design intent, supporting visual amenity; however, it proved to be underutilized, becoming a place to see rather than a place to be. The roof terrace provided limited plant diversity or benefits to nature, provided limited mitigation of urban heat island effect, and had a limited capacity to reduce stormwater run-off due to the predominantly hard surfaces.

Scenes from the roof terrace in 2016:

Oversized pots and Chinese grey-brick paving / image: courtesy of Lee Parks, AECOM
image: courtesy of Lee Parks, AECOM
Ornamental grasses in autumn / image: courtesy of Lee Parks, AECOM
Seating with cushions / image: courtesy of Lee Parks, AECOM
Chinese grey-brick paving / image: courtesy of Lee Parks, AECOM

Scenes from the roof terrace in 2017:

Hosting employee events / image: courtesy of Lee Parks, AECOM
Roof terrace as a green backdrop to indoor gallery space / image: courtesy of Lee Parks, AECOM
An employee event / image: courtesy of Lee Parks, AECOM

2018 Revitalization, Stage 1

In the spring of 2018, AECOM landscape practice leader Lee Parks instigated a roof garden initiative and launched a vision:

To provide a wider range of environmental and visual amenity to the roof terrace to diversify its function and increase opportunities for social interaction through the roof garden committee.

A new stage in the garden evolution began, driven by goals for employee engagement and sustainability.

To enhance the space, additional planting containers, soil, and a wider range of seasonal plants were added to increase plant diversity, as there was a limited budget of around RMB20,000 (around $2,850) to make improvements. Plant containers were proposed for plant trials to increase ecological benefits and form the basis of internal research for species mixes or new plant trials that could subsequently be applied to larger scale AECOM landscape projects in public spaces or similar roof gardens in and around the Shanghai area. Others were used for growing vegetables and herbs to harvest food or provide benefits to pollinators.

The launch of this initiative was supported by leaders and employees who worked as a team to construct plant containers, fill them with soil, arrange perennials and grasses, and sow seeds for the vegetable containers. Scenes from the launch in 2018:

Employee and leadership engagement to prepare containers / image: courtesy of Lee Parks, AECOM
Preparing containers / image: courtesy of Lee Parks, AECOM
Container drainage / image: courtesy of Lee Parks, AECOM
Planting mixes / image: courtesy of Lee Parks, AECOM
Soaking seeds / image: courtesy of Lee Parks, AECOM
Employees and leadership planting perennials and grasses / image: courtesy of Lee Parks, AECOM

The improvements drew attention to the roof garden and soon after the revitalization, a roof garden committee was established. To raise awareness of the improvements, the committee arranged a happy hour to celebrate the new plants and encourage more employees to engage, setting up a Roof Garden Social Media Group to attract voluntary support on plant maintenance and other activities. The happy hour enabled the committee to welcome employees and encourage greater use of the space. This led to an increase in employees bringing family to the roof during weekends.

Roof Garden Committee Happy Hour in 2018 / image: courtesy of Lee Parks, AECOM
Roof Garden Committee Happy Hour barbecue in 2018 / image: courtesy of Lee Parks, AECOM
Employee family visits the vegetable garden / image: courtesy of Lee Parks, AECOM

Click here for next Thursday’s post, part two in this three-part series, which will cover the evolution after the stage 1 revitalization to a more diverse roof garden, from summer 2019 through to the emergence of COVID-19.

Lee Parks, International ASLA, is a British landscape architect and Executive Director at AECOM, based in Shanghai. His research focuses on ecological landscape planning, green infrastructure, Nature-based Solutions, and ecological planting design.

LIAO Jingjing, Master, is a landscape designer at AECOM. Her research focuses on green infrastructure, Nature-based Solutions, and community renewal and empowerment.

Advertisement